Toimisto
ID 695468PUOLIKKOTIE 8
PUOLIKKOTIE 8
Espoo, 02630
Kysy meiltä vuokratasosta
- Koko316 - 756 m² (noin 31 - 75 työpistettä)
- Yhteenveto
- Sijainti
- Esite
- Toimitilakonsultti
- Ota yhteyttä
Yhteenveto
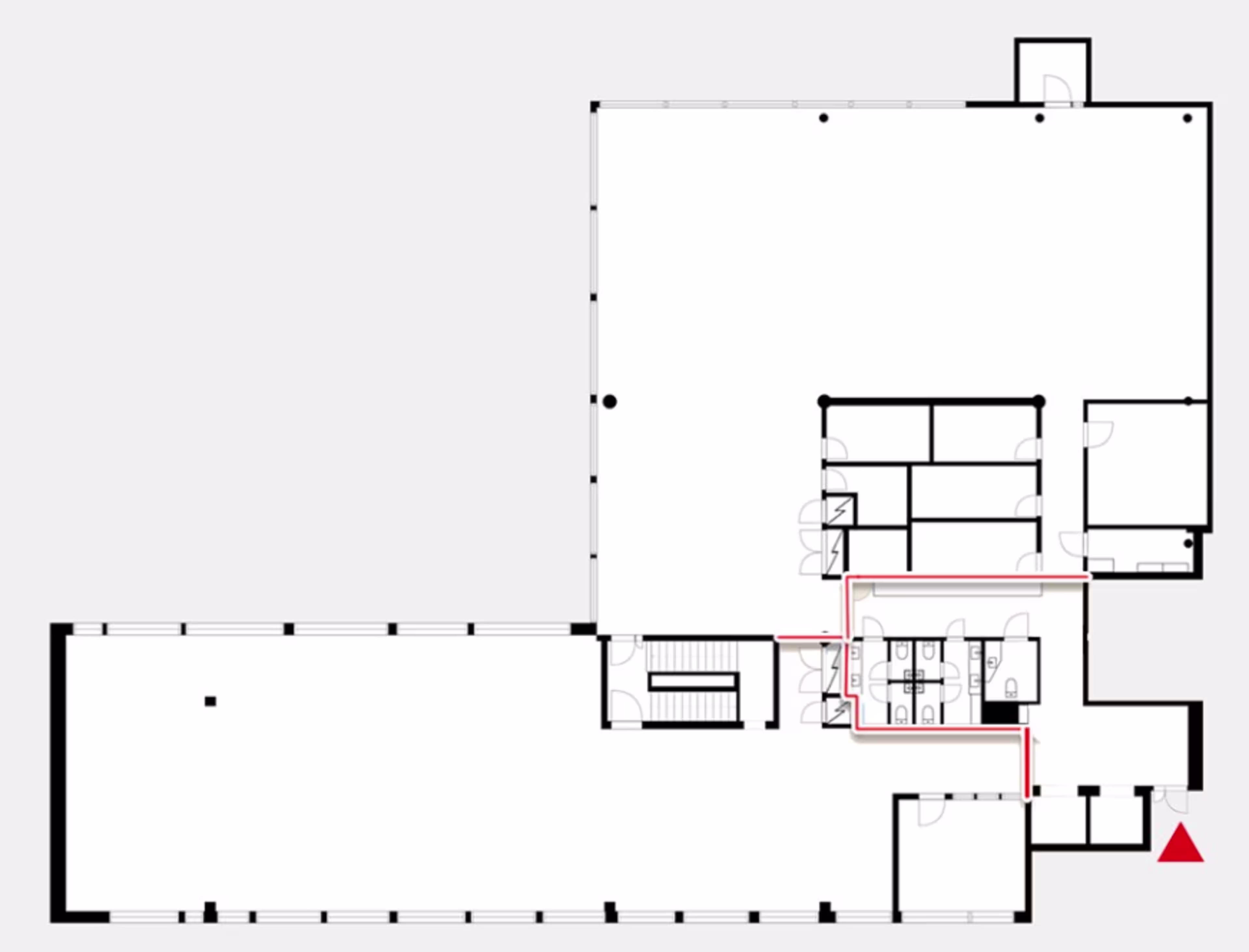
Vuokrataan valoisaa ja avaraa toimistotilaa. Tilassa on toimivasti avotilaa sekä huoneita ja neuvottelutiloja. Se jakaantuu kahteen siipeen, joten eri toimintojen istuttaminen tilaan käy luontevasti. Oheinen pohja osoittaa koko tilan sekä sen jakomahdollisuuden punaisella viivalla. Kiinteistössä on vapaana useita eri tiloja: 316m2, 350m2, 406m2, 500m2 sekä 756m2.
Mikäli tämä kohde ei sovellu yrityksellesi, ota yhteyttä, niin teemme kartoituksen toimitilatarpeidenne mukaisesti! Välitettävänämme on kaikki pääkaupunkiseudun vapaat ja vapautuvat toimitilat.
Mikäli tämä kohde ei sovellu yrityksellesi, ota yhteyttä, niin teemme kartoituksen toimitilatarpeidenne mukaisesti! Välitettävänämme on kaikki pääkaupunkiseudun vapaat ja vapautuvat toimitilat.
Kohteen palvelut
Business Park Safiirin moderni, valoisa arkkitehtuuri luo Länsiväylän varteen näyttävän maamerkin, johon suuren ja kansainvälisenkin yrityksen on mielekästä sijoittua. Pääkonttoritason kohde on tasokas sijainti monen alan yrityksille. Se sijaitsee Matinkylässä Länsiväylän varrella, Kehä I:n ja II:n tuntumassa, Otaniemestä ja Tapiolasta ja vain 15 minuutin ajomatkan päässä Helsingin keskustaan. Kauppakeskus Iso Omena ja Matinkylän metroasema on toimistorakennuksen välittömässä läheisyydessä. BREEAM-sertifioitu.
Sijainti
Toimitilakonsultti

Yhteystiedot
Ota yhteyttä






