Toimisto
ID 695466LÖNNROTINKATU 5
LÖNNROTINKATU 5
Helsinki, 00120
Kysy meiltä vuokratasosta
- Koko966 - 1 043 m² (noin 96 - 104 työpistettä)
- Yhteenveto
- Sijainti
- Esite
- Toimitilakonsultti
- Ota yhteyttä
Yhteenveto
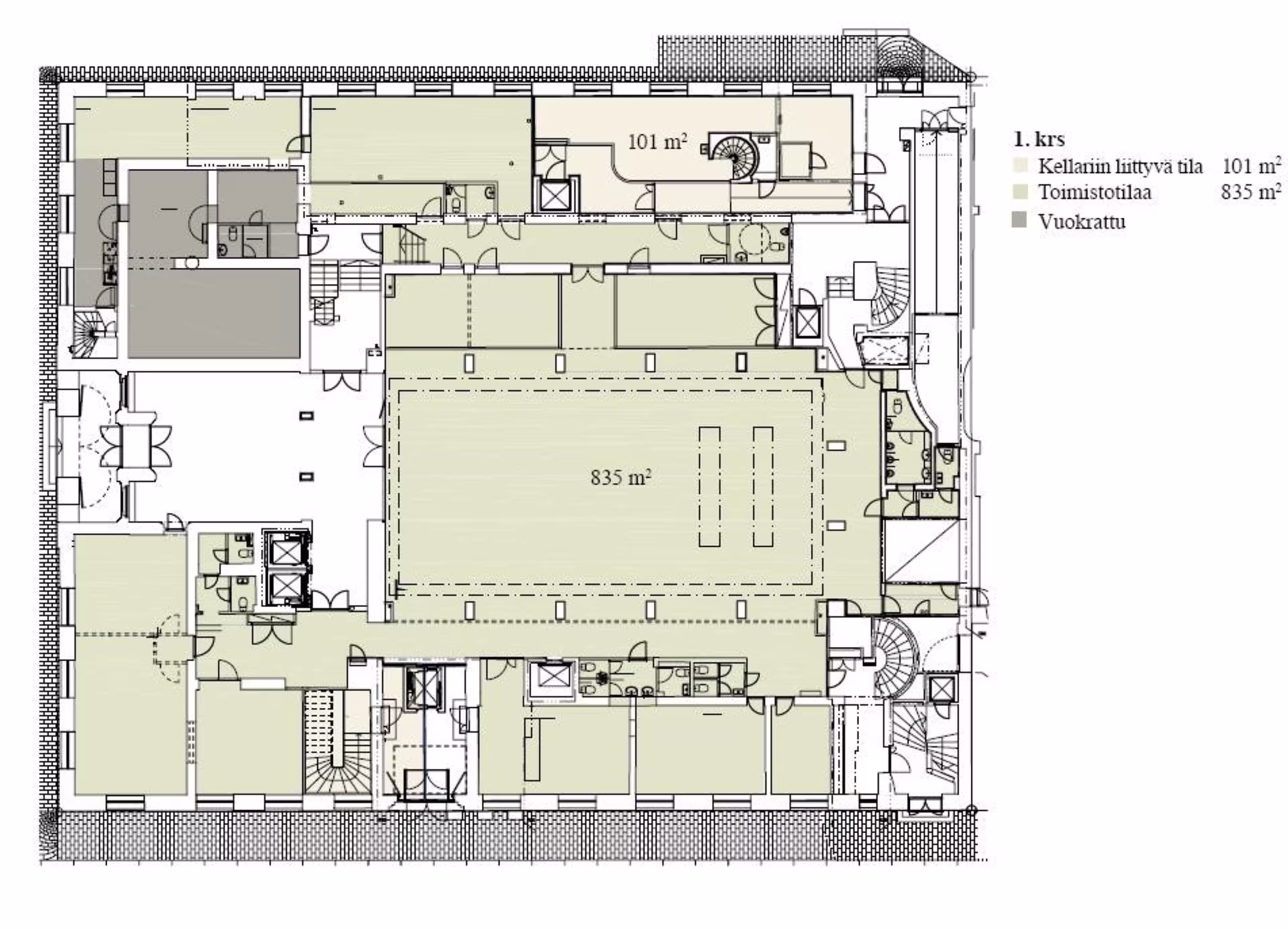
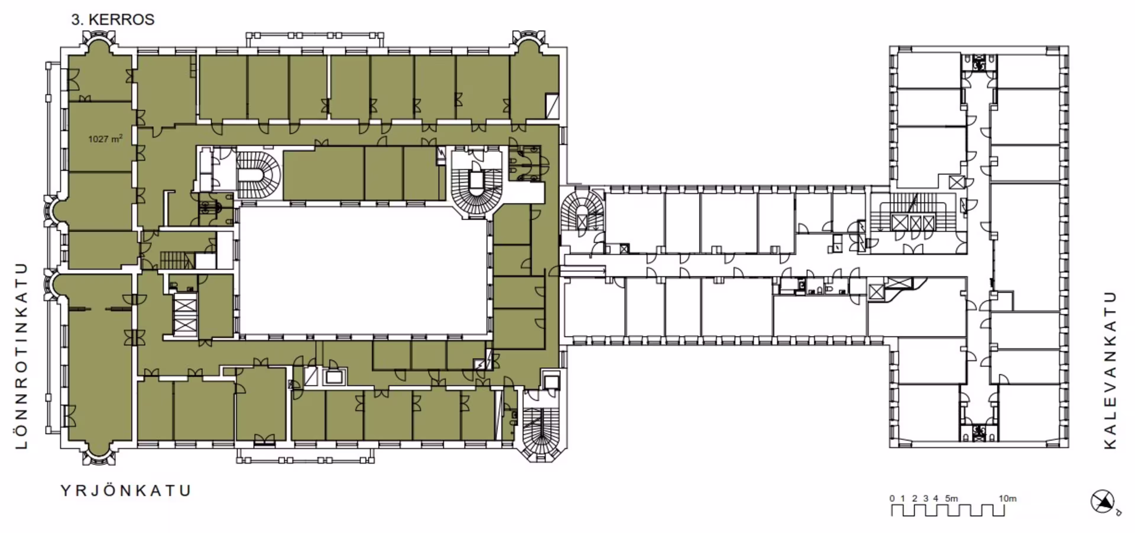
Arvokkaassa Suomitalossa vuokrattavana erikokoisia toimitiloja. Toimitilat suunnitellaan ja remontoidaan käyttäjän näköiseksi.
Vapaana olevat tilat:
4.krs 1043m2
6-7.krs 966m2
Mikäli tämä kohde ei sovellu yrityksellesi, ota yhteyttä, niin teemme kartoituksen toimitilatarpeidenne mukaisesti! Välitettävänämme on kaikki pääkaupunkiseudun vapaat ja vapautuvat toimitilat.
Vapaana olevat tilat:
4.krs 1043m2
6-7.krs 966m2
Mikäli tämä kohde ei sovellu yrityksellesi, ota yhteyttä, niin teemme kartoituksen toimitilatarpeidenne mukaisesti! Välitettävänämme on kaikki pääkaupunkiseudun vapaat ja vapautuvat toimitilat.
Kohteen palvelut
Helsingin keskustassa Ruttopuiston laidalla sijaitseva näyttävä arvokiinteistö, joka valmistui vuonna 1911 Suomi-yhtiöiden pääkonttoriksi. Upea sisääntuloaula kivilattioineen ja historiallisine yksityiskohtineen luo arvokkaan tunnelman. Vuokrattavia kerroksia kiinteistössä on 6 kappaletta. Erinomainen sijainti takaa helpon saavutettavuuden, minkä lisäksi kaikki keskustan palvelut ovat aivan käden ulottuvilla.
Sijainti
Toimitilakonsultti

Yhteystiedot
Ota yhteyttä




