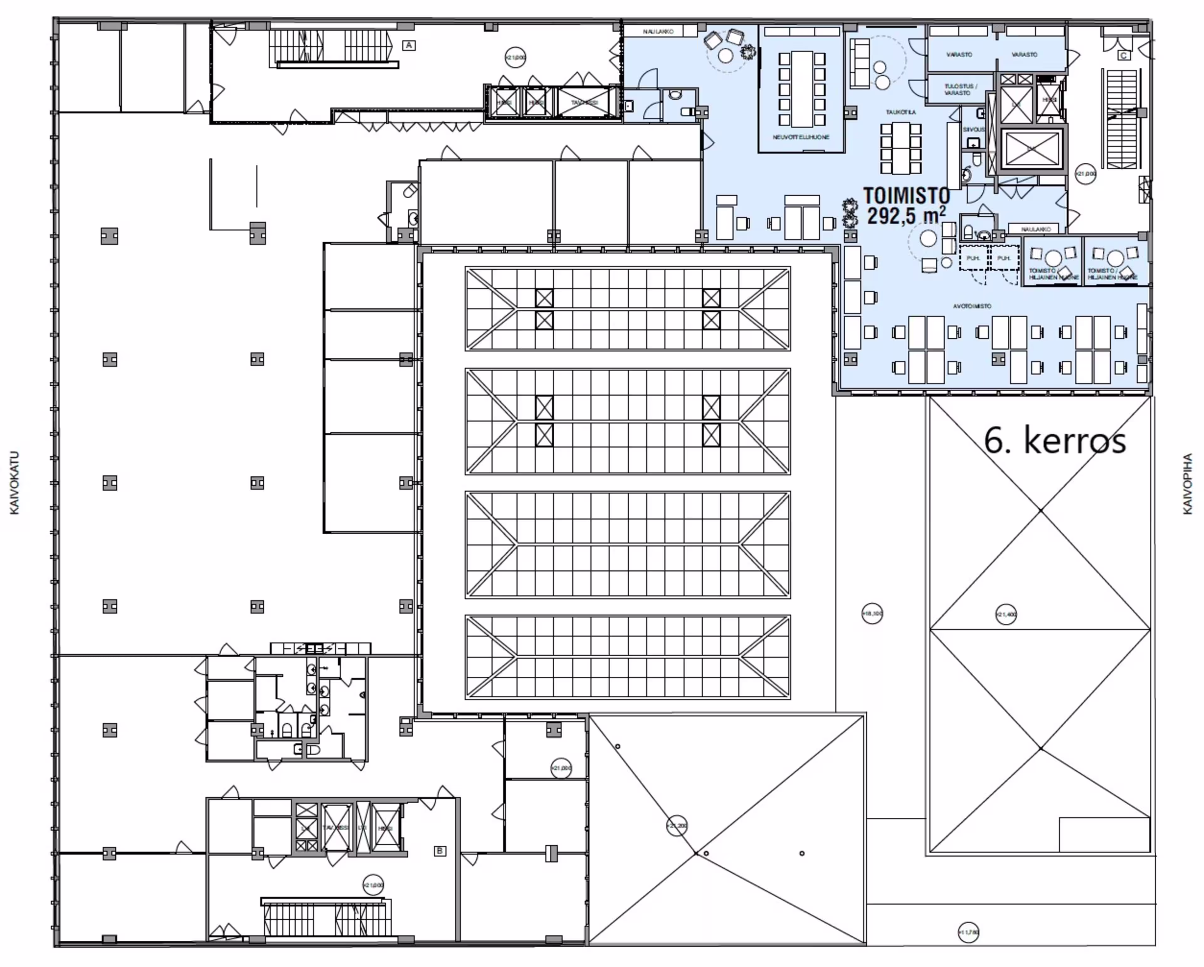
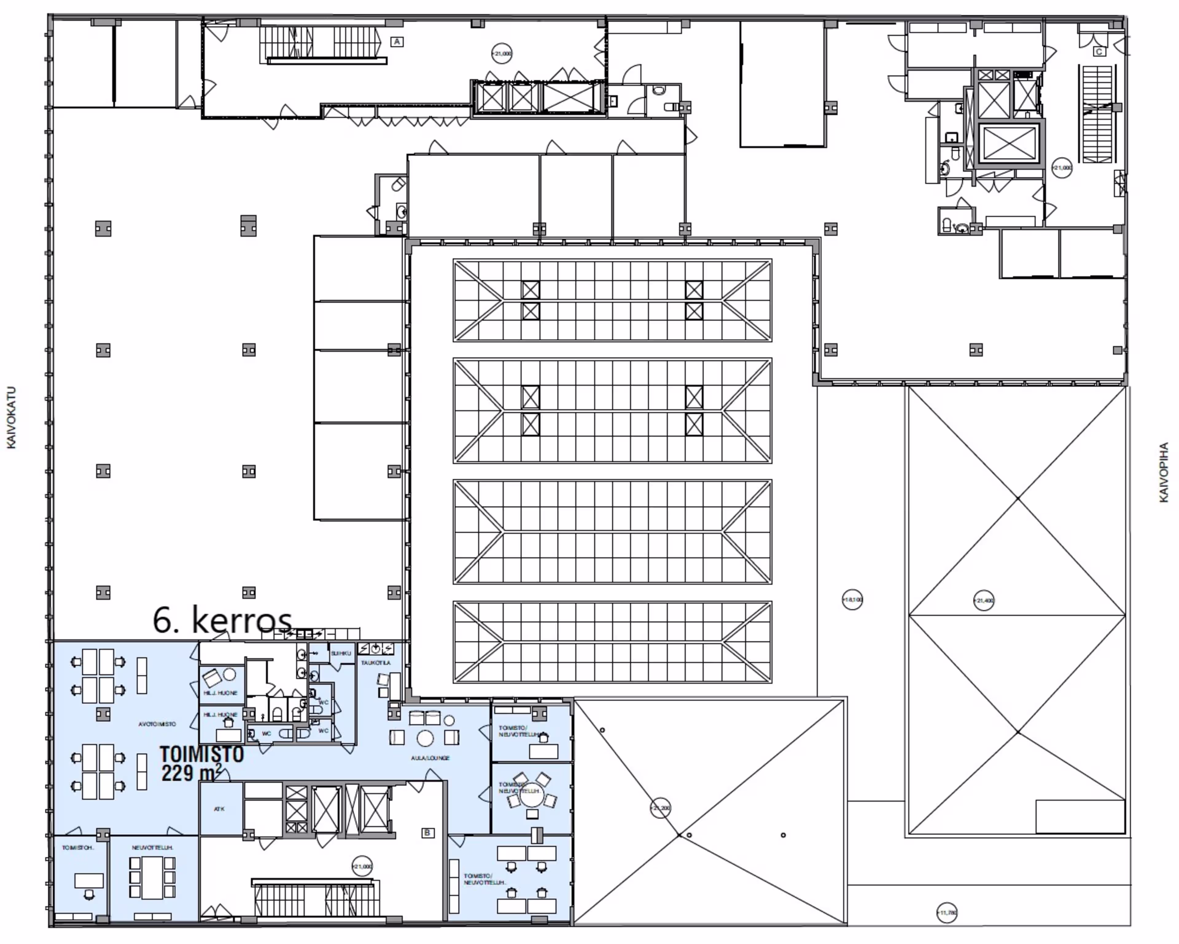
Toimisto
ID 693776KAIVOKATU 10
KAIVOKATU 10
Helsinki, 00100
Kysy meiltä vuokratasosta
- Koko229 - 1 005 m² (noin 22 - 100 työpistettä)
- Yhteenveto
- Sijainti
- Esite
- Toimitilakonsultti
- Ota yhteyttä
Yhteenveto
Vapaata toimistotilaa erinomaisilla liikenneyhteyksillä. Tilat ovat tyylikästä avotoimistoa, jotka remontoidaan käyttäjilleen ja tilankäyttö suunnitellaan yhdessä vuokralaisen kanssa. Tiloista on upeat maisemat Rautatieaseman suuntaan.
Kohteen palvelut
Helsingin keskipisteessä sijaitseva perinteikäs Kaivotalo on rakennettu 1955. Se sijaitsee vastapäätä päärautatieasemaa Kaivopihalla ja kulkuyhteydet rakennukselle ovat vertaansa vailla ja mm. suoraan rakennuksen alla on pääsy metroon. Rakennuksen ensimmäiset kerrokset ovat liiketilakäytössä ja ylimmät kerrokset toimistotiloina. Tiloista on hienot näkymät ja ne ovat monin tavoin modernit.
Sijainti
Toimitilakonsultti

Yhteystiedot
Ota yhteyttä








