Toimisto
ID 695457ITÄMERENKATU 23
ITÄMERENKATU 23
Helsinki, 00180
Kysy meiltä vuokratasosta
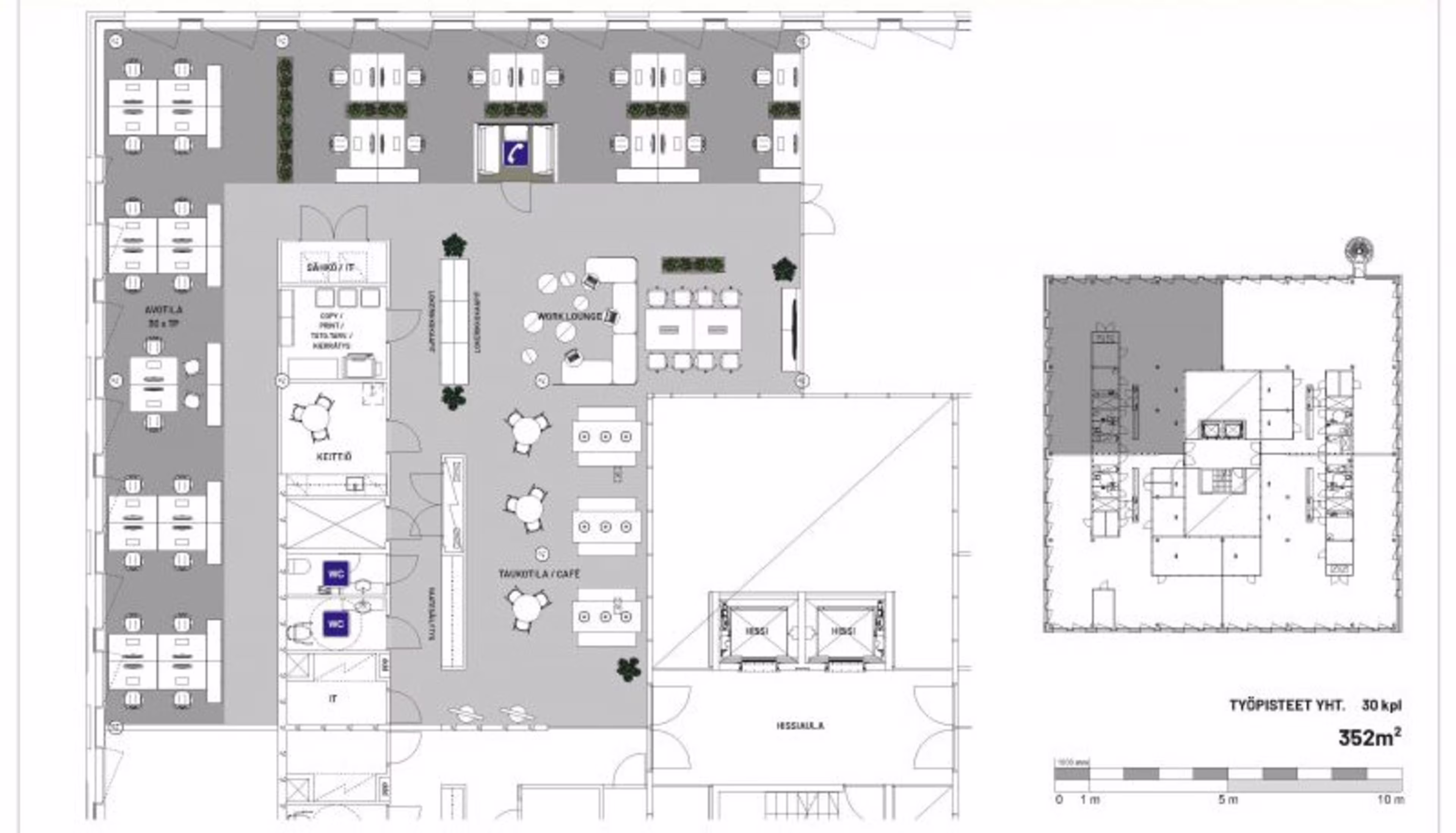
- Koko380 - 1 408 m² (noin 38 - 140 työpistettä)
- Yhteenveto
- Sijainti
- Esite
- Toimitilakonsultti
- Ota yhteyttä
Yhteenveto
Modernissa ja edustavassa Ruoholahden Ankkurissa on vapaana avaraa ja valoisaa toimistotilaa. Kerroksien läpi menee atrium joka tuo toimistoon valoa.
Seuraavat tilakokonaisuudet vapaana:
3. krs 380m2 - 1408m2 (koko kerros)
4. krs 312,5m2
Seuraavat tilakokonaisuudet vapaana:
3. krs 380m2 - 1408m2 (koko kerros)
4. krs 312,5m2
Kohteen palvelut
Ruoholahden Ankkuri on vuonna 2013 valmistunut moderni toimistotalo, joka sijaitsee keskellä Ruoholahtea. Rakennus tarjoaa vuokralaisilleen kaikki nykyaikaiset ominaisuudet ja vastaa vaativammankin vuokralaisen vaatimuksiin. Viihtyvyyttä lisäävät ravintola, catering-palvelut, aulapalvelu, kokoustilat ja auditorio. Kohde on helposti saavutettavissa niin metrolla, raitiovaunulla kuin linja-autollakin ja autopaikkoja voi vuokrata mm. omasta autohallista.
Sijainti
Toimitilakonsultti

Yhteystiedot
Ota yhteyttä






